For the next five or six weeks, construction activities for the Grand Bohemian Hotel project will include blasting at approximately 2pm on weekdays.
While a blasting mat is used to cover the blasting area, to ensure public safety, some locations around Falls Park, including the Liberty Bridge, will be closed to the public for approximately 20 minutes every day, from 1:50pm to 2;10pm. Once blasting is complete, construction personnel will reopen the safety zone and allow park users to return to the area.
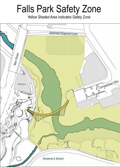
See the attached map for specific blasting areas.
Traffic on a portion of Falls Street, Camperdown Way and the on-ramp to Church Street will also be halted briefly for the blasts, so motorists traveling in the vicinity are urged to use caution and to be aware of traffic control personnel.





